"leider schon vermietet!"
155 m² - Lohbarbek, Steinburg, Schleswig-Holstein, Deutschland 25551
Objekt Beschreibung
Die Wohnung befindet sich in einem Zweifamilienhaus in ruhiger Lage von Lohbarbek und besteht aus Erd- u. Obergeschoss.
Ferner gehören ein großzügiger Garten mit Terrasse und überdachtem Sitz- und Grillplatz, sowie 2 PKW-Stellplätze u. 2 Kellerräume zum angebotenen Objekt!
Im Erdgeschoß befinden sich der Flur, der geräumige Wohn-/Essbereich mit offener Küche, das Schlafzimmer mit Zugang zum Vollbad, ein Kinder-/Gäste- oder Arbeitszimmer, ein Hauswirtschaftsraum inkl. Gäste-WC, ein Abstellraum und die Treppe zum OG.
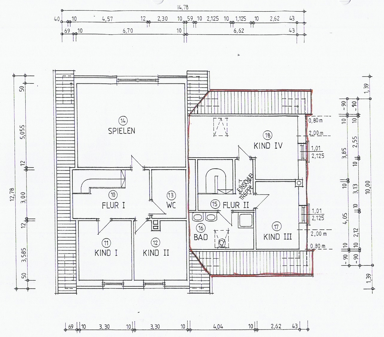
Im Obergeschoss befinden sich der Flur, 2 Kinder-/Gäste- oder Arbeitszimmer und ein weiteres Bad.
Für weitere Informationen und/oder einen Besichtigungstermin stehen wir Ihnen jederzeit zur Verfügung!
Objektinfo
Objekt Typ : Mietwohnung
Angebotstyp : Vermietung
Objekt Nr. : 3101
Preis : 0€ Kaltmiete
Lage : ruhige Lage
Zimmer : 5
Badezimmer : 2
Wohnfläche : 155 m²
Heizungsart : Öl
Baujahr : 0
Nebenkosten : 0€
Objekt Adresse
Land : Deutschland
Bundesland : Schleswig-Holstein
Kreis : Steinburg
Stadt : Lohbarbek
PLZ : 25551
Postleitzahl : 25551
Mietwohnung Vermietung
- Badezimmer : 2
- Wohnfläche : 155 m²
0€ Kaltmiete

